Ventis HE325R Wood Fireplace
Look no further than the Ventis HE325R zero-clearance wood burning fireplace for the perfect combination of style and high efficiency. Featuring retractable double doors, the 2.9 cubic foot firebox provides up to 85,000 BTUs comfortably heating 750 to 2,500 square feet.
Emissions are an incredibly low .99 g/h meeting the strictest of EPA standards. The retractable doors allow you to fully enjoy the sights and sounds of a real wood fire. With an optional forced air or hot air gravity kit, you can easily transfer heat to other areas of your home.
- Model VB00026
- Ceramic panel baffle
- 71.6% efficient
- 85,000 BTU maximum with seasoned cord wood
- Recommended heating area: 750 – 2,500 sq. ft.
- 8-hour burn time
- High-efficiency EPA certified appliance
- Glass air-wash system
- Molded refractory bricks included
- Stainless-steel secondary-air system improves gas combustion
- 176 cfm premium blower included
- Maximum log length 20″
- Non-catalytic combustion
- 6″ flue diameter
- Firebox volume 3.04 cu. ft.
- Retractable double doors
- Ceramic glass with 18-3/4″ wide x 11″ high viewing area each door
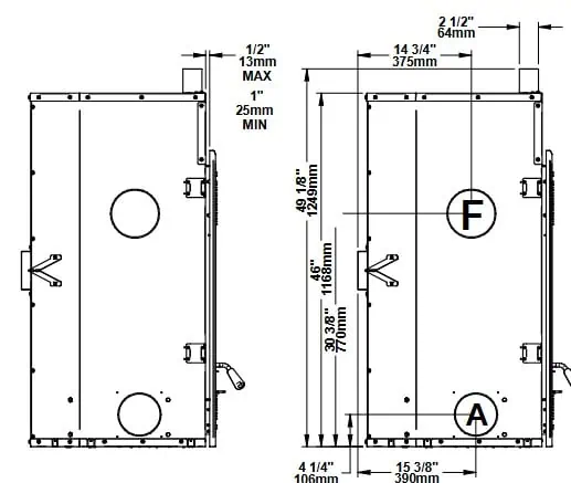
- Unit dimensions: 41-7/8″ wide x 49-1/8″ high x 29″ deep
- Forced air kit optional
- Hot air gravity kit optional
- Rigid fire screen door optional
Required for the Ventis HE325R Zero Clearance Wood Fireplace

Modern faceplate
Available Accessories for the Ventis HE325R Wood Fireplace

4″Ø fresh air intake register with airtight damper

Hot air gravity kit – traditional

Rigid fire screen

Fireplace carrying handles – for carrying fireplace pre-installation

Forced air distribution kit 300 cfm

25′ insulated flex pipe 6″ diameter
Outside Air Kit

Forced Air Distribution Kit


Manage the heat distribution automatically using a wall thermostat. Select the temperature you want to maintain in the room where the fireplace is located. Once the thermostat is satisfied, the excess heat is redirected to another room up to 50 feet (15 m) away from the fireplace using a 350 CFM blower. This allows you to enjoy the fire in your living room without the discomfort of excess heat generated by your Ventis fireplace. The system can also be used to supplement heat in a room remote from the fireplace. For this type of application, the thermostat needs to be positioned in the desired room and programmed with the temperature to be maintained. The system, now in “heat mode”, will activate the blower as long as the temperature in the remote room is not achieved and as long as the fireplace has enough heat to distribute.
Hot Air Gravity Distribution Kit

Another way to distribute excess heat into your home is with a Hot Air Gravity Distribution Kit. The Hot Air Gravity Distribution Kit allows you to block the upper fireplace louver in order to bring hot air into the same room as the fireplace, in adjacent rooms, or upstairs at a maximum distance of 10′ (3 m). The minimum height of the hot air duct must be 68″ (1.7 m) measured from the floor to the top of the hot air register.

Ventis HE325R Wood Fireplace *UPDATED MODEL*: 




