Ruby Platinum 30 Direct Vent Gas Fireplace Insert by Majestic
Majestic’s Ruby Platinum 30 gas fireplace insert features a revolutionary burner system, wrapping the flames in and around the logs like a natural wood fire. Designed to fit in openings at least 31-5/8″ wide by 21″ high and 15″ deep with a back width of 20-1/8″. The Ruby Platinum 30 renews your old fireplace with features that closely mimic a wood burning fire while creating an efficient heating source. Timeless appeal and classic good looks enhance your living space for years of enjoyment.
- Patent-pending burner wraps the flames around realistic hand-painted logs
- LED lit ember bed with 3 brightness levels
- Oak or birch logs
- IFT-RC450 touch screen remote control is easy to operate
- Control the heat and adjust the flame
- Blow warm air into the room with the variable speed fan
- Combine fronts and surrounds to cover your existing opening
- Provides up to 27,000 BTUs natural gas or 25,000 BTUs propane
- Check out the Trilliant 30 insert for more features
- Comparable to Heat & Glo Supreme gas inserts
Ruby Platinum 30 Insert Features and Options
Required Options for the Ruby Platinum 30 Fireplace Insert
1) Must choose non-operable front in black or bronze finish:

Clean Screen Front

Contemporary Arch Front New Bronze

Inside Fit Front for use with custom surround (black only)
2) Must choose surround: small, medium, large, or custom in black or bronze finish:

Ruby Metal Surround

3) Direct vent insert kit required:

Majestic Direct Vent Insert Kit – Termination Caps available in Galvanized, Black or Copper
Additional Features and Accessories for the Ruby Platinum Fireplace Insert

Oak logs

Birch logs

Cottage Red Brick Interior

Tavern Brown Brick Interior

Reflective Black Glass Interior

IntelliFire Touch Remote RC450 (included)

IntelliFire Wi-Fi module (RC400 or RC150 required for thermostat control) (Option)

Battery Backup Wall Switch for IntelliFire Touch (Option)

IntelliFire Touch Wireless Wall Switch RC150 (Option)
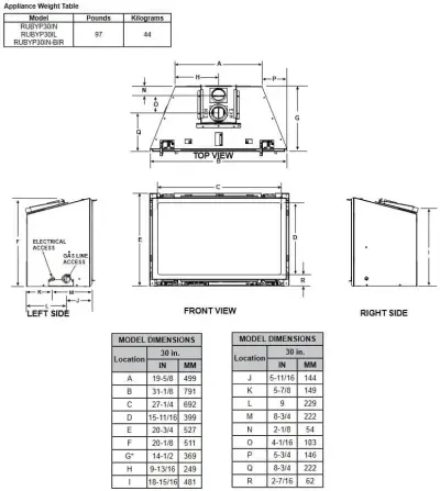
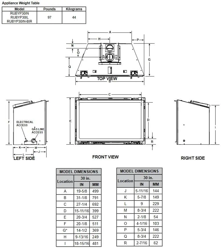
Ruby Platinum 30 Insert Specifications
Ruby Platinum 30″ Insert – RUBYP30IN RUBYP30IL RUBYP30IN-BIR
| Appliance Width: | 31-1/8″ |
| Appliance Height: | 20-3/4″ |
| Appliance Depth1: | 14-1/2″ |
| Appliance Rear Width: | 19-5/8″ |
| Minimum Firebox Opening Front Width: | 31-5/8″ |
| Minimum Firebox Opening Height: | 21″ |
| Minimum Firebox Opening Depth: | 15″ |
| Minimum Firebox Opening Back Width: | 20-1/8″ |
| Fuel Type: | Natural gas or liquid propane |
| Maximum BTU/hr Input: | 27,000 (NG); 25,000 (LP) |
| Viewing Area: | 27-1/2″ x 15-15/16″ |
1 Appliance Depth includes entire unit including depth of firebox and extension onto hearth.
Heat output will vary depending on the type of fuel used. The flame and ember appearance may vary based on the type of fuel burned and the venting configuration used. Actual product appearance, including flame may differ from image shown. Refer to the owner’s manual for complete clearance requirements and specifications. Product specifications and pricing subject to change without notice. For testing and listing information please refer to the owner’s/installation manual.




